Wiefelstede:
Hochwertiges Gastro-Objekt mit Stammkundschaft in Wiefelstede zu vermieten (Obj.Nr. 6537)
Objekt-Nr.: 6537

Zu vermieten

Mietpreis zzgl. NK:
3.500 €
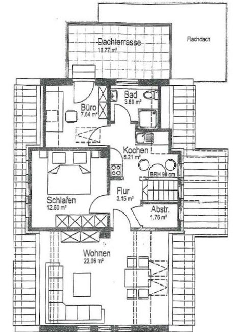
Gesamtfläche ca.:
389 m²
Gastraumfläche ca.:
180 m²
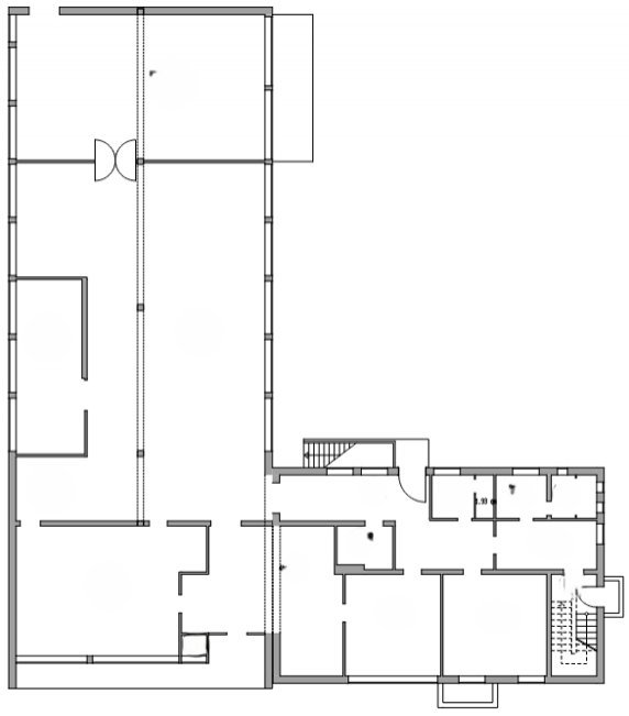
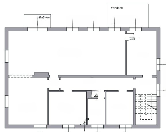
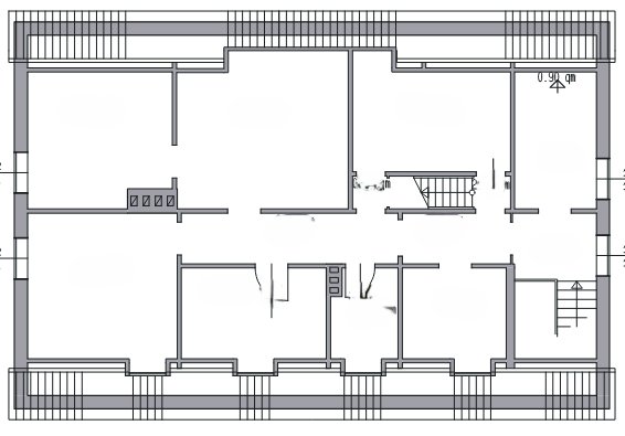
Zur Vermietung steht ein einzigartiges, gut etabliertes Restaurant in Wiefelstede, das fortlaufend modernisiert wurde und Platz für ca. 167 Gäste bietet.
Das edle Ambiente schafft eine einladende Atmosphäre, in der sich Gäste sofort wohlfühlen. Dank eines treuen Kundenstamms hat sich das Restaurant als beliebter Treffpunkt für Feinschmecker aus der gesamten Region etabliert.
Bei Interesse senden wir Ihnen gerne ein Exposé mit weiteren Details zu.
Lagerfläche 100.00 m² •
Baujahr-Gebäude: 1973
Nebenkosten: 500 €
Provision: 2,38 % inkl. ges. MwSt.
Kaution: 7000 €
Zustand: saniert
Der Maklervertrag mit uns kommt durch schriftliche Vereinbarung oder die Inanspruchnahme unserer Maklertätigkeit auf der Basis des Objekt-Exposés und seiner Bedingungen zustande. Die Käufercourtage in Höhe von 3,57% auf den Kaufpreis einschließlich gesetzlicher Mehrwertsteuer ist bei notariellem Vertragsabschluss verdient und fällig. Die Höhe der Bruttocourtage unterliegt einer Änderung bei Steuersatzänderung. Vorstehende Courtage ist in den Kaufvertrag aufzunehmen. Die Grunderwerbsteuer, Notar-, Grundbuch- und Gerichtskosten sind vom Käufer zu tragen. Sollte Ihnen das von uns nachgewiesene Objekt bereits bekannt sein, so teilen Sie uns dieses bitte unverzüglich mit.
Alle Angaben sind ohne Gewähr und basieren ausschließlich auf Angaben die uns von unserem Auftraggeber zur Verfügung gestellt wurden. Wir übernehmen keine Gewähr für die Vollständigkeit, Richtigkeit und Aktualität dieser Angaben. Irrtum und Zwischenverkauf bleiben vorbehalten. Die Weitergabe dieses Exposés an Dritte ohne unsere Zustimmung löst ggfs. Courtage- bzw. Schadensersatzansprüche aus.
Es gelten unsere Allgemeinen Geschäftsbedingungen, durch die Inanspruchnahme unserer Leistungen erklären Sie die Kenntnis und Ihr Einverständnis.
Das könnte Ihnen auch gefallen
Praxisgebäude mit ELW in Rastede-Wahnbek zu vermieten (Obj.-Nr.: 6120)














































