Rastede:
Wohnen auf einer Ebene – Bungalow mit herrlichem Garten und 3 Garagenstellplätzen (Obj.-Nr. 6540)
Objekt-Nr.: 6540

Objektansicht

Objektansicht

Diele

Wohnzimmer

Küche

Flur Schlafbereich

Schlafzimmer

Arbeitszimmer

IMG_3439

Badezimmer

sep. WC

Terrasse

Gartenbereich

Gartenbereich

Garagen

Garage

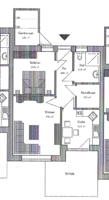
Grundriss

Energieskala


















Preis:
335.000 €
Wohnfläche ca.:
101 m²
Grundstück ca.:
788 m²
Zimmeranzahl:
4
Dieser gepflegte Bungalow aus dem Jahr 1967 befindet sich auf einem großzügigen Grundstück mit ca. 788 m² in ruhiger Wohnlage und bietet eine durchdachte Raumaufteilung auf einer Ebene mit einer Wohnfläche von ca. 101 m² – ideal für Paare, kleine Familien oder alle, die das komfortable Wohnen auf einer Ebene schätzen.
Beim Betreten des Hauses empfängt Sie eine geräumige Diele, von der aus sich der Zugang zum großzügigen Wohnzimmer mit direktem Terrassenzugang und Blick in den Garten öffnet. Die angrenzende Wohnküche ist funktional geschnitten und bietet ausreichend Platz für Ihre individuellen Gestaltungsideen. Ein separates WC steht für Gäste zur Verfügung.
Durch einen kleinen Flur abgetrennt befinden sich im hinteren Bereich des Hauses zwei Schlafzimmer, ein weiteres kleines Zimmer, sowie ein Badezimmer. Diese Aufteilung sorgt für eine klare Trennung zwischen dem Wohn- und dem Ruhebereich.
Zusätzlichen Stauraum bietet der über eine Treppe zugängliche Dachboden und auch der Keller. Eine große Doppelgarage bietet Platz für drei Fahrzeuge sowie zusätzliche Abstellfläche.
Der gepflegte Garten rundet das Angebot ab: Er bietet viel Grün, Platz zur Erholung und Raum für individuelle Gestaltungsideen – ob Blumenbeet, Gemüsegarten oder Sitzplatz unter freiem Himmel.
Haustyp: Bungalow
Provision: 3,57 % inkl. ges. MwSt.
Anzahl Schlafzimmer: 3
Anzahl Badezimmer: 1
Baujahr: 1967
Verfügbar ab: n. V.
Zustand: gepflegt
Heizung: Zentralheizung
Befeuerungsart: Gas
Energieausweistyp: Verbrauchsausweis - gültig bis 16.07.2035
Energieeffizienz-Klasse: H
Baujahr laut Energieausweis: 2017
Der Maklervertrag mit uns kommt durch schriftliche Vereinbarung oder die Inanspruchnahme unserer Maklertätigkeit auf der Basis des Objekt-Exposés und seiner Bedingungen zustande. Die Käufercourtage in Höhe von 3,57% auf den Kaufpreis einschließlich gesetzlicher Mehrwertsteuer ist bei notariellem Vertragsabschluss verdient und fällig. Die Höhe der Bruttocourtage unterliegt einer Änderung bei Steuersatzänderung. Vorstehende Courtage ist in den Kaufvertrag aufzunehmen. Die Grunderwerbsteuer, Notar-, Grundbuch- und Gerichtskosten sind vom Käufer zu tragen. Sollte Ihnen das von uns nachgewiesene Objekt bereits bekannt sein, so teilen Sie uns dieses bitte unverzüglich mit.
Alle Angaben sind ohne Gewähr und basieren ausschließlich auf Angaben die uns von unserem Auftraggeber zur Verfügung gestellt wurden. Wir übernehmen keine Gewähr für die Vollständigkeit, Richtigkeit und Aktualität dieser Angaben. Irrtum und Zwischenverkauf bleiben vorbehalten. Die Weitergabe dieses Exposés an Dritte ohne unsere Zustimmung löst ggfs. Courtage- bzw. Schadensersatzansprüche aus.
Es gelten unsere Allgemeinen Geschäftsbedingungen, durch die Inanspruchnahme unserer Leistungen erklären Sie die Kenntnis und Ihr Einverständnis.
Das könnte Ihnen auch gefallen








































































