Rastede:
Praxisgebäude mit ELW in Rastede-Wahnbek zu vermieten (Obj.-Nr.: 6120)
Objekt-Nr.: 6120

Vorderansicht

Rückwärtige Ansicht

Seminarraum

Therapieraum

WC

Treppenhaus

Schlafzimmer

Wohnzimmer

Kaminofen

Arbeitszimmer

Küche

Badezimmer Dachgeschoss

Grundriss Erdgeschoss

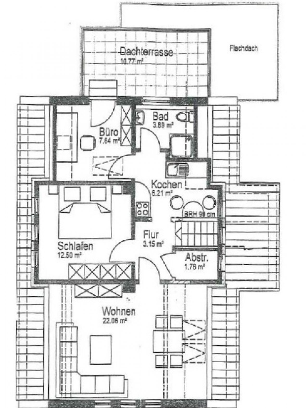
Grundriss Dachgeschoss














Mietpreis zzgl. NK:
1.725 € pro Monat
Gesamtfläche ca.:
163 m²
Büro-/Praxisfläche ca.:
84,50 m²
Arbeiten und Wohnen in einem gepflegten Wohnhaus in Rastede-Wahnbek!
Im Erdgeschoss befindet sich eine gewerbliche Einheit, die als Therapieraum oder für ähnliche Nutzungsarten bestens ausgestattet ist. Das Dachgeschoss bietet eine helle 3 Zimmer-Wohnung mit Balkon, Einbauküche und Kaminofen.
Aufteilung:
Erdgeschoss (Nfl. ca. 84,5 m²):
Eingangsbereich, Flur, Personal-WC, Wartezimmer mit WC, Windfang, Therapieraum sowie ein großer Seminarraum.
Dachgeschoss (Wfl. ca. 78,5 m²):
Flur, Abstellraum, Wohnzimmer, Schlafzimmer, Arbeitszimmer, Kochnische, Badezimmer und Dachterrasse.
Nutzfläche:
Garage, Teilkeller und ein gedämmter Spitzboden.
Ein aktueller Energieausweis wurde beantragt und liegt zur Besichtigung vor.
Nebenkosten: 220 € pro Monat
Provision: 2 Kaltmieten zzgl. ges. MwSt.
Kaution: 3450 €
Baujahr-Gebäude: 1960
Anzahl der Parkflächen: 4
Bodenbelag: Dielen, Fliesen, Parkett
Zustand: saniert
Energieausweistyp: Bedarfsausweis - gültig bis 20.05.2023
Energieeffizienz-Klasse: C
Baujahr laut Energieausweis: 2013
Der Maklervertrag mit uns kommt durch schriftliche Vereinbarung oder die Inanspruchnahme unserer Maklertätigkeit auf der Basis des Objekt-Exposés und seiner Bedingungen zustande. Die Käufercourtage in Höhe von 3,57% auf den Kaufpreis einschließlich gesetzlicher Mehrwertsteuer ist bei notariellem Vertragsabschluss verdient und fällig. Die Höhe der Bruttocourtage unterliegt einer Änderung bei Steuersatzänderung. Vorstehende Courtage ist in den Kaufvertrag aufzunehmen. Die Grunderwerbsteuer, Notar-, Grundbuch- und Gerichtskosten sind vom Käufer zu tragen. Sollte Ihnen das von uns nachgewiesene Objekt bereits bekannt sein, so teilen Sie uns dieses bitte unverzüglich mit.
Alle Angaben sind ohne Gewähr und basieren ausschließlich auf Angaben die uns von unserem Auftraggeber zur Verfügung gestellt wurden. Wir übernehmen keine Gewähr für die Vollständigkeit, Richtigkeit und Aktualität dieser Angaben. Irrtum und Zwischenverkauf bleiben vorbehalten. Die Weitergabe dieses Exposés an Dritte ohne unsere Zustimmung löst ggfs. Courtage- bzw. Schadensersatzansprüche aus.
Es gelten unsere Allgemeinen Geschäftsbedingungen, durch die Inanspruchnahme unserer Leistungen erklären Sie die Kenntnis und Ihr Einverständnis.
Das könnte Ihnen auch gefallen
Büro- / Praxisfläche in 1A Werbelage von Ofen (Obj.-Nr.: 6549)
