Bunde:
Ehemaliger Rindviehbetrieb mit 48 ha Grünland bei Bunde zu verkaufen (Obj. Nr.: 1031)
Objekt-Nr.: 1031

Meyer Immobilien

Gesamtfläche ca.:
482.044 m²
Preis:
1.890.000 €
Zum Verkauf steht ein vielseitig nutzbares Hofanwesen mit Wohnhaus, mehreren Stall- und Wirtschaftsgebäuden sowie arrondierten Grünlandflächen direkt an der Hofstelle. Die Immobilie bietet ideale Voraussetzungen für Tierhaltung, Landwirtschaft, Lagerung oder eine Kombination aus Wohnen und Arbeiten an einem Ort.
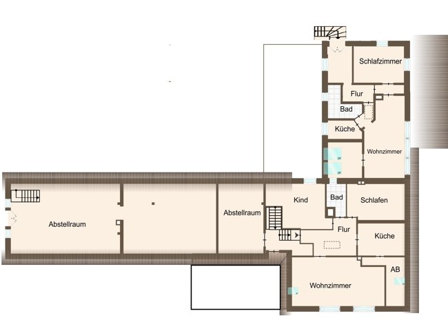
Wohnhaus
Das einseitig angebaute Einfamilienhaus wurde in solider Klinkerbauweise errichtet und stammt ursprünglich aus dem Jahr 1890; ein Umbau bzw. eine Erweiterung erfolgte 1937. Das ausgebaute Dachgeschoss schafft zusätzlichen Wohnraum. Insgesamt stehen ca. 150 m² Wohnfläche mit 7 Zimmern, Diele, Küche, Bad und Hauswirtschaftsraum zur Verfügung. Das Haus bietet viel Platz für die ganze Familie und überzeugt mit dem charmanten Charakter eines gewachsenen Hofensembles.
Eine Sanierung des Hauses ist noch nicht erfolgt und ist notwendig.
Anbindestall mit Scheune…
Der direkt an das Wohnhaus angebaute Anbindestall mit Scheune wurde ca. 1970 errichtet und verfügt bei Außenmaßen von ca. 25 x 20 m über rund 60 Tierplätze. Die Dacheindeckung wurde im Jahr 2010 mit Metallwellplatten erneuert. Das Gebäude bietet gute Voraussetzungen für die weitere landwirtschaftliche Nutzung.
Rinderstall
Ein weiterer Stall aus dem Baujahr ca. 1970 mit Außenmaßen von ca. 18 x 12 m ergänzt das Hofangebot. Hier stehen ebenfalls etwa 60 Plätze zur Verfügung.
Halle
Die im Jahr 1996 errichtete Halle mit Außenmaßen von ca. 18 x 15 m bietet großzügige Lagerflächen für Heu, Stroh, Maschinen oder sonstige landwirtschaftliche Nutzung.
Güllelager
Eine Güllelagerkapazität von ca. 800 m³ ist ebenfalls vorhanden und rundet die betriebliche Infrastruktur sinnvoll ab.
Flächen
Besonders attraktiv sind die arrondierten Grünlandflächen direkt um den Hof. Sie ermöglichen kurze Wege, eine effiziente Bewirtschaftung und unterstreichen den praktischen Mehrwert dieser Hofstelle.
Ein interessantes Anwesen mit viel Platz, Entwicklungsmöglichkeiten und einer soliden Basis für landwirtschaftliche Nutzung, Tierhaltung oder individuelle Konzepte rund um Wohnen und Arbeiten auf dem Land.
Grundstück ca.: 482.044 m²
Provision: 5,95% inkl. ges. MwSt.
Der Maklervertrag mit uns kommt durch schriftliche Vereinbarung oder die Inanspruchnahme unserer Maklertätigkeit auf der Basis des Objekt-Exposés und seiner Bedingungen zustande. Die Käufercourtage in Höhe von 3,57% auf den Kaufpreis einschließlich gesetzlicher Mehrwertsteuer ist bei notariellem Vertragsabschluss verdient und fällig. Die Höhe der Bruttocourtage unterliegt einer Änderung bei Steuersatzänderung. Vorstehende Courtage ist in den Kaufvertrag aufzunehmen. Die Grunderwerbsteuer, Notar-, Grundbuch- und Gerichtskosten sind vom Käufer zu tragen. Sollte Ihnen das von uns nachgewiesene Objekt bereits bekannt sein, so teilen Sie uns dieses bitte unverzüglich mit.
Alle Angaben sind ohne Gewähr und basieren ausschließlich auf Angaben die uns von unserem Auftraggeber zur Verfügung gestellt wurden. Wir übernehmen keine Gewähr für die Vollständigkeit, Richtigkeit und Aktualität dieser Angaben.
Irrtum und Zwischenverkauf bleiben vorbehalten. Die Weitergabe dieses Exposés an Dritte ohne unsere Zustimmung löst ggfs. Courtage- bzw. Schadensersatzansprüche aus.
Es gelten unsere Allgemeinen Geschäftsbedingungen, durch die Inanspruchnahme unserer Leistungen erklären Sie die Kenntnis und Ihr Einverständnis.
Das könnte Ihnen auch gefallen
Vielseitige Büro / Praxisfläche im Herzen von Rastede - Oldenburger Straße (Objekt-Nr. 6585)




























































