Ovelgönne / Salzendeich:
Resthof mit 4 Wohneinheiten auf 3,8 ha Grünland in idyllischer Lage von Salzendeich (Obj.-Nr.: 6449)
Objekt-Nr.: 6449

Objektansicht

Draufsicht

Luftbild

Wohnhaus und Remise

Remise vermietet an die Bewohner des Hauses

ehemaliges Vereinsheim, leerstehend

vermieteter Lagerplatz

WE 2 EG hinten Küche

WE 2 EG hinten Schlafzimmer

WE 2 EG hinten Bad

WE 3 DG vorne Schlafzimmer

WE 3 DG vorne Wohnzimmer

WE 3 DG vorne Küche

WE 3 DG vorne Essbereich

WE 3 DG vorne Bad

WE 4 DG hinten Küche

WE 4 DG hinten Essplatz

WE 4 DG hinten Wohnzimmer

WE 4 DG hinten Bad

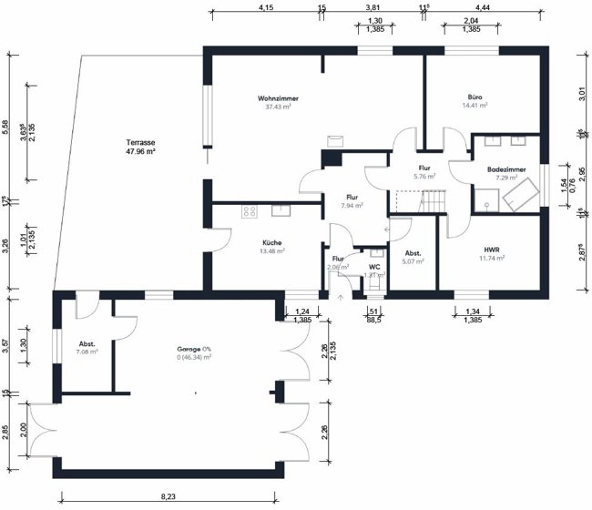
Erdgeschoss

Dachgeschoss





















Preis:
469.000 €
Wohnfläche ca.:
349 m²
Grundstück ca.:
38.526 m²
Zimmeranzahl:
13
Großzügiges Resthofanwesen in Ovelgönne / Salzendeich. Diese historische Immobilie wurde um 1900 errichtet und besticht durch ihren einzigartigen Charme und die weitläufige Grundstücksfläche von beeindruckenden 38.526 m², die Ihnen zahlreiche Möglichkeiten bietet.
Mit einer großzügigen Wohnfläche von insgesamt 349 m² eignet sich dieser Resthof ideal für Familien oder als Mehrgenerationenhaus mit zusätzlichem Mietertrag. Es sind 4 Wohneinheiten vorhanden, die zusammen insgesamt 13 Zimmer, darunter acht Schlafzimmer und vier Badezimmer, umfassen. Diese Verteilung sorgt für ausreichend Platz und Flexibilität, um Ihren individuellen Bedürfnissen gerecht zu werden. Derzeit ist eine Wohneinheit im Dachgeschoss, sowie weitere Bereiche der Nutz u. Freiflächen vermietet, sodass diese Immobilie auch eine gute Anlage bietet.…
Die ländliche Lage in Ovelgönne / Salzendeich garantiert Ihnen Ruhe und Entspannung, während gleichzeitig die Vorzüge eines komfortablen Wohnens in greifbarer Nähe bleiben. Nutzen Sie die einmalige Gelegenheit, ein Stück Geschichte zu erwerben und gestalten Sie diesen Resthof ganz nach Ihren Vorstellungen.
Die Aufteilungen der Wohnungen im Detail:
WE 1, Erdgeschosswohnung vorne mit ca. 118,71 m² Wfl. (mietfrei)
Küche, Wohn-/ Esszimmer, 3 Schlafzimmer, Bad, Flur und Gartenanteil.
WE 2, Erdgeschosswohnung hinten mit ca. 117,82 m² Wfl. (mietfrei)
Küche, Wohn-/ Esszimmer, Bad, 2 Schlafzimmer, Büro, Diele, Windfang und einem Kellerraum und Gartenanteil.
WE 3, vorne Dachgeschosswohnung vorne mit ca. 52,96 m² Wfl. (mietfrei)
Küche, Wohn-/Esszimmer, 2 Schlafzimmer, Bad und Flur.
WE 4, Dachgeschosswohnung hinten mit ca. 58 m² Wfl. (vermietet)
Küche, Wohnzimmer, Schlafzimmer, Bad, Flur und Abstellraum.
Im Außenbereich ist eine ca. 600 m² große Weidefläche an eine Hundeschule verpachtet.
Ein ca. 90 m² großes Vereinsheim steht derzeit leer und kann individuell genutzt werden.
Zusätzlich ist ein Platz als Lagerplatz an ein Handwerksunternehmen verpachtet.
Die aktuellen Mieteinnahmen übersenden wir Ihnen gerne auf Anfrage.
Haustyp: Resthof
Provision: 3,57 % inkl. ges. MwSt.
Anzahl Schlafzimmer: 8
Anzahl Badezimmer: 4
vermietet: ja
Baujahr: 1900
Verfügbar ab: n.V.
Heizung: Etagenheizung
Befeuerungsart: Gas
Energieausweistyp: Verbrauchsausweis - gültig bis 12.11.2034
Energieeffizienz-Klasse: D
Baujahr laut Energieausweis: 2021
Alle Angaben sind ohne Gewähr und basieren ausschließlich auf Angaben die uns von unserem Auftraggeber zur Verfügung gestellt wurden. Wir übernehmen keine Gewähr für die Vollständigkeit, Richtigkeit und Aktualität dieser Angaben. Irrtum und Zwischenverkauf bleiben vorbehalten. Die Weitergabe dieses Exposés an Dritte ohne unsere Zustimmung löst ggfs. Courtage- bzw. Schadensersatzansprüche aus.
Es gelten unsere Allgemeinen Geschäftsbedingungen, durch die Inanspruchnahme unserer Leistungen erklären Sie die Kenntnis und Ihr Einverständnis.
Das könnte Ihnen auch gefallen


























































