Jade:
Modernes und geräumiges Einfamilienhaus in Jaderberg (Obj.-Nr.: 6617)
Objekt-Nr.: 6617

Luftbild

Objektansicht

Objektansicht

Luftbild

Terrassenansicht

Gartenansicht

Küche

Kaminofen

Wohnzimmer

Büro im Erdgeschoss

Gäste WC

Diele Erdgeschoss

Flurbereich Dachgeschoss

Schlafzimmer 1

Schlafzimmer 2

Schlafzimmer 3

Schlafzimmer 4

Badezimmer

Erdgeschoss

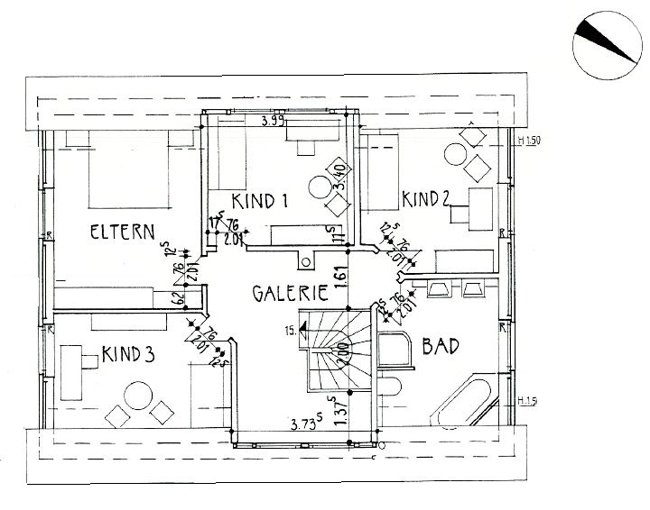
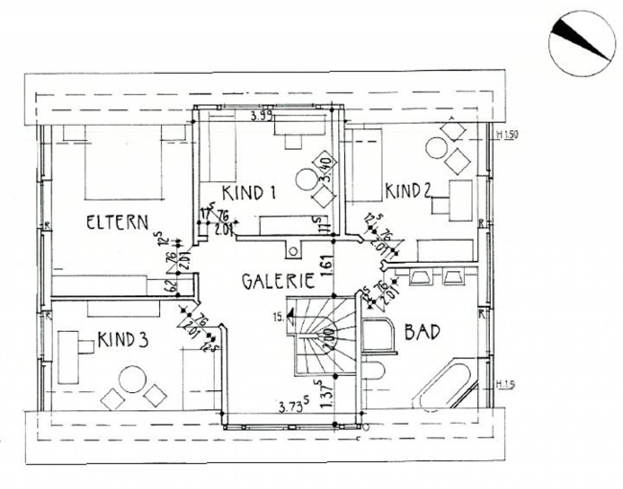
Dachgeschoss




















Preis:
399.000 €
Wohnfläche ca.:
159,90 m²
Grundstück ca.:
676 m²
Zimmeranzahl:
6
Dieses gepflegte Einfamilienhaus aus dem Baujahr 1998 überzeugt durch seine durchdachte und großzügige Raumaufteilung sowie ein attraktives Grundstück mit einer Größe von 676 m². Mit einer Wohnfläche von ca. 160 m² bietet die Immobilie viel Platz und ideale Voraussetzungen für das Familienleben.
Raumaufteilung im Detail:
Erdgeschoss:
Einladende Diele, Gäste-WC, großzügiger Wohn- und Essbereich mit offener Küche, ein Büro bzw. Gästezimmer sowie ein praktischer Hauswirtschaftsraum.
Dachgeschoss:
Vier gut geschnittene Schlafzimmer sowie ein komfortables Vollbad.
Der Spitzboden bietet zusätzliche Abstellfläche und ergänzt das Raumangebot sinnvoll.
Haustyp: Einfamilienhaus
Etagenanzahl: 2
Provision: 3,57 % inkl. ges. MwSt.
Anzahl Schlafzimmer: 4
Anzahl Badezimmer: 1
Baujahr: 1998
Verfügbar ab: n. V.
Zustand: gepflegt
Befeuerungsart: Gas
Energieausweistyp: Verbrauchsausweis - gültig bis 22.04.2036
Energieeffizienz-Klasse: F
Baujahr laut Energieausweis: 1998
Alle Angaben sind ohne Gewähr und basieren ausschließlich auf Angaben die uns von unserem Auftraggeber zur Verfügung gestellt wurden. Wir übernehmen keine Gewähr für die Vollständigkeit, Richtigkeit und Aktualität dieser Angaben.
Irrtum und Zwischenverkauf bleiben vorbehalten. Die Weitergabe dieses Exposés an Dritte ohne unsere Zustimmung löst ggfs. Courtage- bzw. Schadensersatzansprüche aus.
Es gelten unsere Allgemeinen Geschäftsbedingungen, durch die Inanspruchnahme unserer Leistungen erklären Sie die Kenntnis und Ihr Einverständnis.
Das könnte Ihnen auch gefallen






















































